切换到宽版
  • 394阅读
  • 2回复

[奇观]上海芳华书院空间设计 – 唤醒根植乡土的崇文愿景 / MMA脉思脉得建筑事务所[50P] [复制链接]

上一主题 下一主题
在线jjybzxw

UID: 551814

 

发帖
217760
金币
657605
道行
2006
原创
2444
奖券
3260
斑龄
41
道券
1203
获奖
0
座驾
设备
摄影级
在线时间: 47398(小时)
注册时间: 2008-10-01
最后登录: 2026-01-11
只看楼主 倒序阅读 使用道具 楼主  发表于: 2025-11-17
— 本帖被 huozm32831 执行加亮操作(2025-11-19) —

由MMA脉思脉得建筑事务所 主持设计的上海芳华书院位于上海市奉贤区青村镇李窑村。李窑村村域面积3.18平方公里,是集全国文明村、上海市美丽乡村示范村等称号于一体的乡村振兴示范村。该村以"芳华李窑"文旅综合体为核心,通过融合文化、非遗传承与现代农业,形成"文化旅游产业+"的发展模式。截至目前,村内已建成高端民宿、稻田咖啡馆等多元业态50余间。

△片刻芳华 © MMA脉思脉得建筑事务所
芳华书院作为李窑村文旅发展的重要拼图,作为“青普这厢” 系列的点睛配套设施,依托青普文化导师智库与系统化艺文课程,试图以融合文学、艺术、科学、非遗等多元领域的方式创造独特的人文度假体验。

△ 青村镇李窑村区位示意图 © MMA脉思脉得建筑事务所

△ 青村镇李窑村鸟瞰 ©胡义杰
李窑村肌理与基础空间类型研究
李窑村的现有肌理是以村居、民居为建筑母题,同时结合农田与乡道的构成方式。芳华书院的原始单体建筑尺度显著脱离建筑母题,体量突出。

△ 李窑村肌理分析与项目基地 © MMA脉思脉得建筑事务所

△ 李窑村现状经营性业态分析 © MMA脉思脉得建筑事务所
不同于村中其他民居及经营性业态的将空间及人的活动之于建筑本体的“外化”拓展倾向,书院建筑本体则被赋予了以绝对的空间尺度差异将丰富的、散点的乡村生活“内化”凝练、聚焦的机会,亦是某种程度实现对乡村环境进行空间类型补完的契机。

△ 空间类型研究 © MMA脉思脉得建筑事务所
书院印象 · 前世今生
中国传统书院是古代私学发展的产物,是文人儒士聚居讲学的场所。亦是为实现对精神美学情趣的追求而营造的建筑和园林空间。事业与生活,严肃与轻快,自省与怡情,多样的空间氛围在传统书院中相互交融,形成雅致沉稳又不失端庄大气的“书院式"空间。
当下随着对城市美学和精英消费主义的过度宣扬而泛滥造成的审美疲劳。新形式和新场域的文化消费随之诞生,乡村坐拥城市缺失的自然资源却缺少相应的文化艺术内容和配套设施。于是“村中书院”的概念被创造性提及。继承传统书院的环境观、人文意境打造属于当代文化生活的空间映像,叩动跨越时空的文化回响,“芳华书院” 基于李窑村的乡村文脉应运而生。既实现了建筑学意义上的乡村空间类型的补完,也锚定了李窑村文旅版图中文化内涵的承载对象。

△ 芳华书院建筑体整体形象及环境 © MMA脉思脉得建筑事务所
芳华书院室内空间基础状况
设计任务核心内容是书院室内空间的更新改造,建筑本体为二层公共建筑,于2022土建完工,2023年室内硬装基本完工。由于前期未有明确的定位与经营业态策划介入,室内空间现状呈现:
1, 空间尺度相对较大却失焦的情况;
2, 平面动线、竖向交通设置缺乏具体功能的指引;
3, 设备消防管线桥架的布置呈现无序甚至对未来空间使用产生影响。
经业主团队历时一年的充分探讨及前策研究,2024年明确了以“中华书院文化”为导向,围绕书院打造相关文化体验及消费的项目定位。室内空间设计改造正式启动。同时业主也明确了改造原则:
1, 改造设计应尽量保持已完工的室内天花、墙面、地面等基础界面;
2, 由于室内空间尺度相对较大,尽量避免以大面积的实体面材包覆做“二次”完成面;

△ 书院室内空间基础状况(书院主空间) © MMA脉思脉得建筑事务所
空间设计策略:诗画留白,记忆触媒植入
面对设计挑战,设计师提出了“诗画留白并植入记忆触媒”的设计策略。设计概念原初来自于对于书香文化的理解及提炼,在现代社会语境下,创作者试图以空间为诗笺,致敬“崇文”这一朴素愿景,将书院蕴含的文化传承、学术交流之精神,通过空间、色彩、材质等现代设计手法得以唤醒呈现。
保持将原有大量白色墙顶完成面作为视觉留白空间,运用统一的木色轻质构件植入室内空间,营造轻盈、通透、灵活的空间界定。尝试唤醒人们对于中式传统书院“散发乘夜凉,开轩卧闲敞。荷风送香气,竹露滴消响。”的场所记忆。
书院主空间

△ 书院主空间 © MMA脉思脉得建筑事务所
△ 书院主空间基础构成 © MMA脉思脉得建筑事务所
书院主空间为两层通高,整体空间印象呼应中式传统建筑中的硬山类型,有相对清晰的开间韵律。但平面相对自由,局部二层呈“T”字形的原始平面,表面上看有诸多缺陷,例如空间尺度定义模糊,作为线性交通空间过于浪费,作为承载具体功能的使用空间其比例又过于非标。同时局部二层空间又“悬浮”于整个空间的几何中心,不容忽视。
经过设计师的思考,创造性地将局部二层这个看似消极的部分作为“空间触媒”,激发出书院主空间的潜力和特质。将活动空间、书咖、静修、服务空间和谐组织在一起。
△ 书院主空间改造策略分析 © MMA脉思脉得建筑事务所
设计语言通过同一元素的叠用、复用,其形式韵律的延伸,既保留了原有室内空间的体量优势,与村中其他公共空间形成互补、差异;又一定程度在原空间基础上发展出近人尺度的丰富体验以及更具细节的视觉体验。
将轻质的、统一的木色杆件元素连续搭接,勾勒出中式传统建筑“”厅、堂“”中的 “柱、椽、檩”等视觉映像。其元素本身不仅是装饰构件,也是空间界定的载体。
设计语言呼应“开卷”浪漫瞬间的线条美感与层次。诸如书院空间楼梯的蜿蜒延伸、顶部天花的起伏错落,使空间内的使用者得以延展其丰富连续的视觉体验。徜徉于书院中犹如翻阅一页页书籍名典,是所谓啖品肴馔,意犹未尽。
△ 书院主空间设计生成分析 © MMA脉思脉得建筑事务所
书院主空间是整个芳华书院的设计核心。利用“悬浮”于主空间几何中心的局部二层营造聚焦点则是空间设计的点睛之笔。其设计灵感来自于 “龙鳞卷”,作为已被列入非遗的中国古代书籍编纂装帧工艺,“龙鳞卷”是中华书香文化巅峰最瑰丽的文化载体。宋代张邦基在《墨庄漫录》中形容其为“逐叶翻飞,展卷至末,仍合为一卷”,阅读「龙鳞卷」,有“龙游于书中,书居于龙骧”之感。
设计师以“龙鳞卷”作空间转译,以线性立面铺陈开来的“长卷”为底,将立面装饰单元以“书页”鳞次排开,犹如裱贴于长卷之上。开卷,舒展,错落有序的书页呈现龙鳞腾跃之貌,惟妙惟肖。如此设计既为二层空间引入独特的线性空间体验,同时朝向书院主空间的内容展示也成为定调芳华书院的精神堡垒。
△ 书院主空间“龙鳞卷”设计生成分析 © MMA脉思脉得建筑事务所

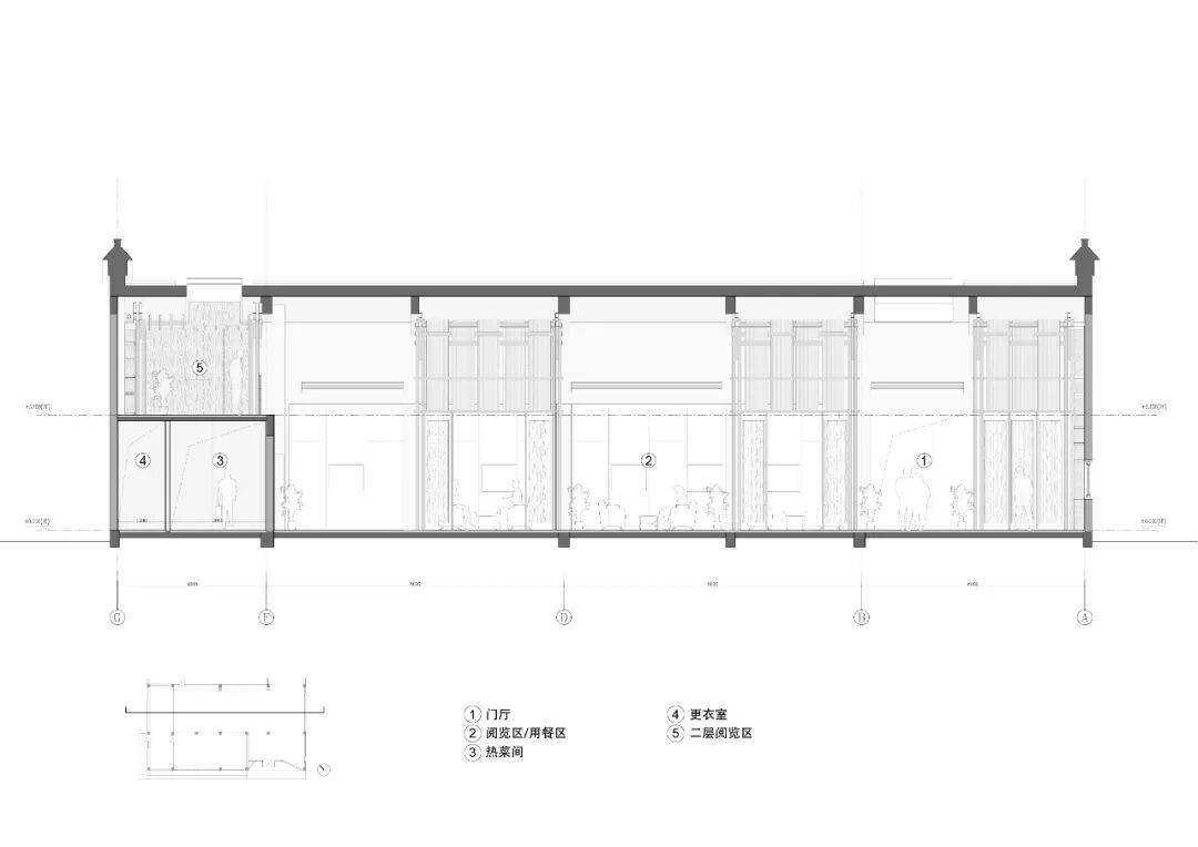
△ 书院主空间首层平面图 © MMA脉思脉得建筑事务所

△ 书院主空间南立面图 © MMA脉思脉得建筑事务所

△ 书院主空间 © MMA脉思脉得建筑事务所

△ 书院主空间 © MMA脉思脉得建筑事务所

△ 书院主空间东立面图 © MMA脉思脉得建筑事务所

△ 书院主空间 © MMA脉思脉得建筑事务所

△ 书院主空间北立面图 © MMA脉思脉得建筑事务所

△ 书院主空间 – 北立面朝向主入口门厅 © MMA脉思脉得建筑事务所

△ 书院主空间北立面局部 © MMA脉思脉得建筑事务所
位于“龙鳞卷”下方的书咖吧台区域为书院主空间的经营服务配套,设计权重上让位于两层通高的吹拔空间。同时将原有空间界定模糊、失焦的状况给予稍微清晰的“动、静”界定和层次区分。

△ 书院主空间 – 书咖吧台 © MMA脉思脉得建筑事务所

△ 书院主空间 – 书咖休息区 © MMA脉思脉得建筑事务所

△ 书院主空间 – 书咖吧台 © MMA脉思脉得建筑事务所
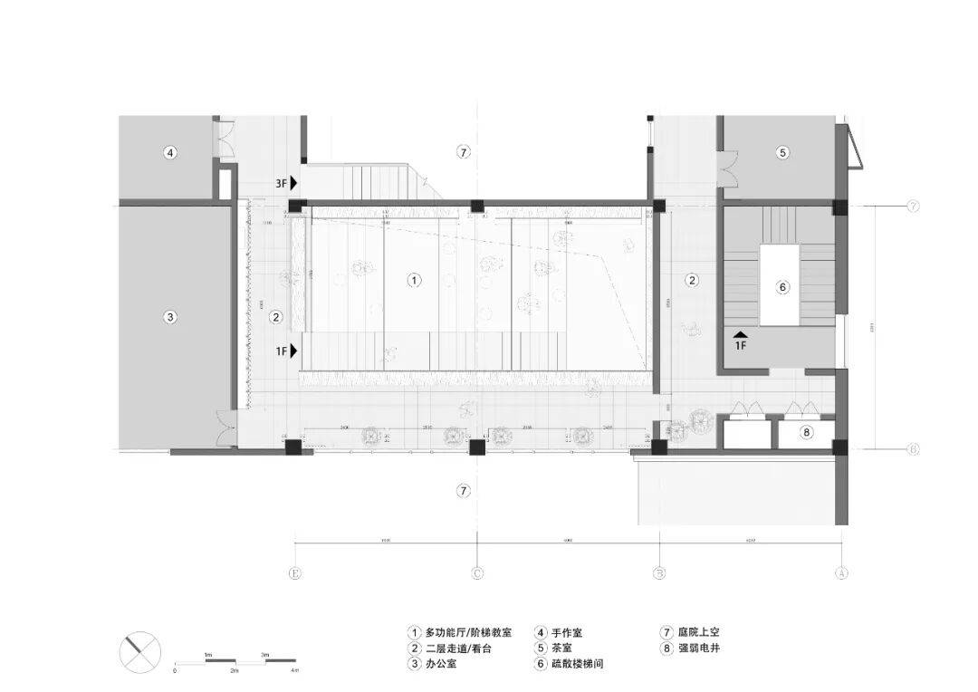
书院主空间二层“T”字形平面相对于首层可达性弱,设计师考虑将二层空间进行特色打造而非容纳常规功能。首先是东西向的线性空间结合“龙鳞卷”的展开营造通过性的线性空间体验;其次将二层平面西侧作为空间序列的尽端,塑造更具私密性的静修、独处场所。以温暖的木色对墙面、地面进行统一的包覆处理,强调松弛温暖的空间氛围。

△ 书院主空间二层平面图 © MMA脉思脉得建筑事务所

△ 书院主空间西立面图 © MMA脉思脉得建筑事务所

△ 书院主空间 – 二层静修 © MMA脉思脉得建筑事务所

△ 书院主空间 – 二层静修 © MMA脉思脉得建筑事务所

△ 书院主空间 – 二层静修 © MMA脉思脉得建筑事务所
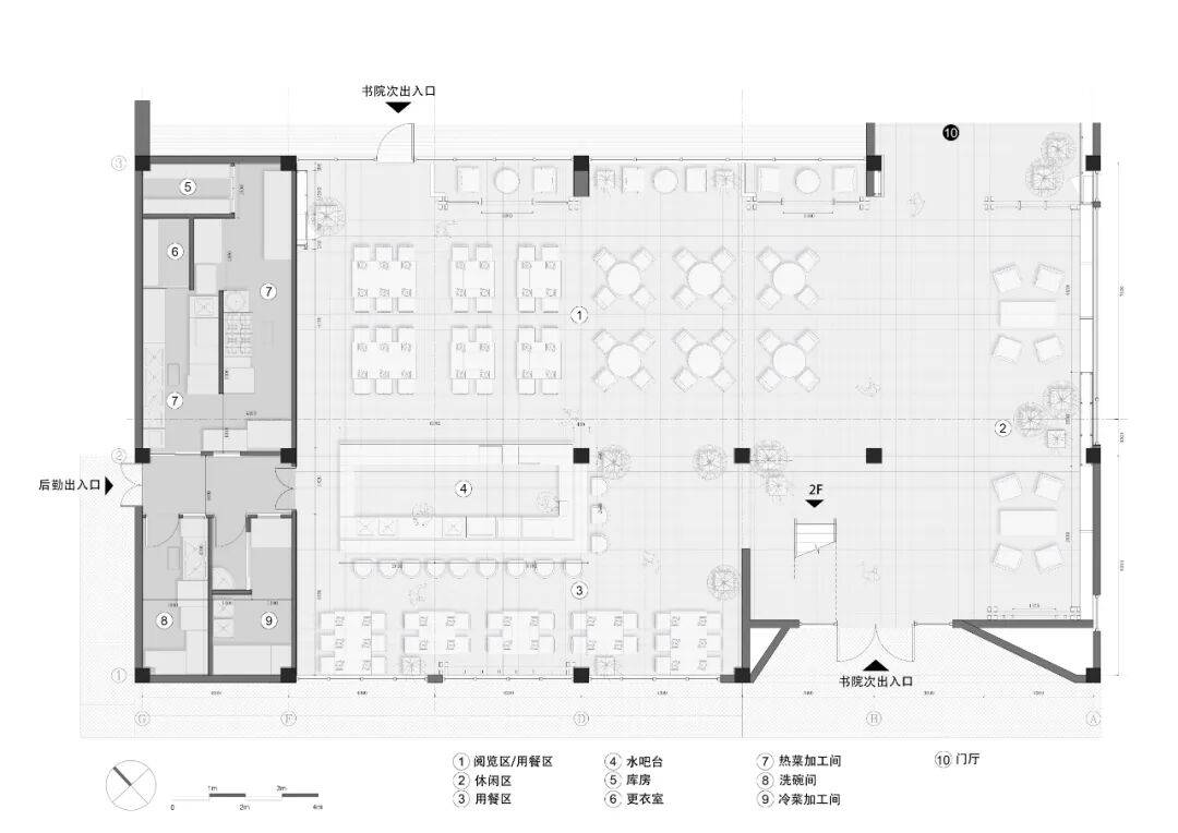
书院主入口门厅
书院主入口门厅直接连接三个主要的趣味空间:进入门厅与书院花园形成对景,门厅向南连接书院主空间,向北连接大台阶空间。设计上希望强调将访客快速导入到核心的趣味空间,形式上“藏晦”,只在天花部分延续统一的重复元素实现空间引导。

△ 书院主入口门厅 © MMA脉思脉得建筑事务所

△ 书院室内空间基础状况(主入口空间) © MMA脉思脉得建筑事务所

△ 书院主入口门厅平面图 © MMA脉思脉得建筑事务所

△ 书院主入口门厅立面图 © MMA脉思脉得建筑事务所

△ 书院主入口门厅 © MMA脉思脉得建筑事务所

△ 书院主入口门厅 © MMA脉思脉得建筑事务所
书院花园空间由书院主空间、主入口门厅以及大台阶空间三者围合而成。是非常理想的室内外互动外延空间,设计之初希望引入代表江南书院气息的香樟作为书院精神的视觉载体,设计上既与三个核心空间形成视觉呼应,互为对景,同时也为户外空间注入宜人的蓬勃生机。

△ 书院花园空间设计效果图 © MMA脉思脉得建筑事务所

△ 书院主入口对景花园效果图 © MMA脉思脉得建筑事务所

△ 书院花园空间 © MMA脉思脉得建筑事务所

△ 书院花园空间 © MMA脉思脉得建筑事务所
大台阶空间
书院大台阶空间是原始建筑体量中空间形态最为清晰明确的部分,即原始建筑设计中定义的讲堂空间。空间改造设计延续这一定义并进一步强调氛围营造。使其既可满足集会、讲学场景,亦可容纳三两读者自读或休闲。

△ 书院大台阶空间 © MMA脉思脉得建筑事务所

△ 书院室内空间基础状况(大台阶空间) © MMA脉思脉得建筑事务所
首层台阶区域以大量的开架书柜设计定调书香氛围,通过与主空间呼应的统一杆件构成元素将两层通高吹拔空间统一塑造。原有设计中大台阶的讲台区域与首层平面的公共交通动线重叠存在干扰,设计建议引入满足灵活开合的屏风元素调节不同空间使用场景的需求。

△ 书院大台阶空间效果图 © MMA脉思脉得建筑事务所

△ 书院大台阶空间首层平面图 © MMA脉思脉得建筑事务所

△ 书院大台阶空间二层平面图 © MMA脉思脉得建筑事务所

△ 书院大台阶空间 © MMA脉思脉得建筑事务所

△ 书院大台阶空间 © MMA脉思脉得建筑事务所

△ 书院大台阶空间立面图 © MMA脉思脉得建筑事务所

△ 书院大台阶空间 © MMA脉思脉得建筑事务所

△ 书院大台阶空间北立面图 © MMA脉思脉得建筑事务所

△ 书院大台阶空间南立面图 © MMA脉思脉得建筑事务所

△ 书院大台阶空间天花细节设计 © MMA脉思脉得建筑事务所

© MMA脉思脉得建筑事务所
完整项目信息
项目名称:上海芳华书院空间设计 – 唤醒根植乡土的崇文愿景
项目类型:空间改造活化
项目地点:上海市奉贤区李窑村
建成状态:建成
设计时间:2024年11月- 2025年2月
建设时间:2025年2月- 2025年5月
建筑面积:2000平方米
设计单位:MMA脉思脉得建筑事务所
主持建筑师:汪洋、张睿钊
设计团队:金文杰、陈泽伟、陈鹏彬、郑高飞(实习)
摄影:MMA脉思脉得建筑事务所
李窑村鸟瞰摄影:胡义杰
业主:上海青普青溪文化发展有限责任公司
空间改造施工方:上海灏辉筑耀建筑工程有限公司
整村改造上位规划设计单位:水石设计
原始书院主体建筑设计单位:水石设计

1条评分金币+22
huozm32831 金币 +22 - 2025-11-21
山庄提示: 道行不够,道券不够?---☆点此充值☆
 
在线jjybzxw

UID: 551814


发帖
217760
金币
657605
道行
2006
原创
2444
奖券
3260
斑龄
41
道券
1203
获奖
0
座驾
设备
摄影级
在线时间: 47398(小时)
注册时间: 2008-10-01
最后登录: 2026-01-11
只看该作者 沙发  发表于: 2025-11-17
上海芳华书院:李窑村乡村振兴中的文化地标

项目背景与定位
上海芳华书院坐落于上海市奉贤区青村镇李窑村,由MMA脉思脉得建筑事务所主持设计。李窑村作为全国文明村、上海市美丽乡村示范村,以“芳华李窑”文旅综合体为核心,探索“文化旅游产业+”发展模式。芳华书院作为这一模式的重要拼图,依托青普文化导师智库与系统化艺文课程,融合文学、艺术、科学、非遗等多元领域,旨在创造独特的人文度假体验。其设计不仅回应了传统书院的文化意境,更通过现代设计手法实现了乡村空间类型的补完,成为李窑村文旅版图中文化内涵的核心承载。

李窑村肌理与空间挑战
李窑村现有肌理以村居、民居为建筑母题,结合农田与乡道构成。芳华书院的原始单体建筑尺度显著脱离传统肌理,体量突出。室内空间改造前面临三大挑战:
1. 空间尺度大且失焦:缺乏明确的功能指引。
2. 动线与交通无序:平面动线、竖向交通设置模糊。
3. 管线布置混乱:设备消防管线桥架无序,影响使用。

设计需在保持已完工基础界面的前提下,通过“诗画留白,记忆触媒植入”的策略进行改造。

核心设计策略:“诗画留白与记忆触媒”
1. 空间留白与轻质介入
设计师保留大量白色墙顶完成面作为视觉留白,运用统一的木色轻质构件植入空间,营造轻盈、通透、灵活的界定。避免大面积实体面材包覆,既尊重原有空间体量,又通过近人尺度的构件丰富体验。

2. “龙鳞卷”概念的空间转译
以被列入非遗的中国古代书籍装帧工艺“龙鳞卷”为灵感。“龙鳞卷”因“逐叶翻飞,展卷至末,仍合为一卷”的特性,被转译为书院主空间的设计核心。局部二层“悬浮”空间被打造成“龙鳞卷”形态:线性立面铺陈“长卷”,装饰单元如“书页”鳞次排开,呈现龙鳞腾跃之貌。这一设计既为二层引入独特线性体验,又成为主空间的精神堡垒。

关键空间解析
1. 书院主空间:核心精神载体
- 空间结构:两层通高,呼应中式传统建筑硬山类型,具有清晰开间韵律。局部二层“T”字形平面被创造性转化为“空间触媒”。
- “龙鳞卷”设计:二层立面采用木色杆件模拟“龙鳞卷”的书页形态,开合错落,光线透过缝隙洒入,营造动态光影效果。下方书咖吧台区域则以简洁线条界定动静分区。
- 功能组织:整合活动空间、书咖、静修、服务等功能。首层为开放交流区,二层西侧为私密静修区,通过木色包覆营造温暖氛围。

2. 书院主入口门厅:引导与过渡
- 连接书院花园、主空间及大台阶空间,形式上“藏晦”,仅通过天花重复元素引导人流。门厅向南直通主空间,向北连接大台阶,快速导入核心体验区。

3. 书院花园:室内外互动枢纽
由主空间、门厅及大台阶围合而成,引入香樟作为视觉载体,象征江南书院气息。与三个核心空间形成对景关系,注入蓬勃生机,成为室内外活动的延伸。

4. 大台阶空间:多功能讲堂
原始建筑定义的讲堂空间被强化氛围营造。首层设置大量开架书柜,延续主空间的木色杆件元素。讲台区域引入灵活开合屏风,调节不同使用场景(集会、讲学、自读)。大台阶既满足功能需求,又通过台阶与书柜的结合增强书香氛围。

设计细节与文化表达
- 材质选择:以木色为主导,呼应传统书院的温润质感。轻质木构杆件模拟传统建筑“柱、椽、檩”结构,唤起对中式建筑的记忆。
- 光影运用:“龙鳞卷”的开合设计使光线随时间变化产生动态效果,模拟“开卷”的浪漫瞬间。通高空间的自然光与人工光结合,营造层次丰富的视觉体验。
- 非遗元素:“龙鳞卷”的直接引用将非物质文化遗产转化为可感知的空间语言,强化文化传承的主题。

项目意义与影响
1. 文化赋能乡村振兴:芳华书院填补了李窑村文旅版图中的文化内涵空白,通过高品质的文化体验吸引游客,提升乡村文旅附加值。
2. 空间类型补完:不同于村中其他外化拓展的经营性业态,书院通过“内化”凝练乡村生活,实现对乡村环境的空间类型补完。
3. 传统与现代的对话:以传统书院文化为魂,现代设计手法为形,在乡村语境下创造了既有文化底蕴又具时代感的空间范本。
4. 社区与游客共享:作为公共文化空间,书院不仅服务游客,也为本地居民提供阅读、交流、学习的场所,促进社区文化建设。

总结
上海芳华书院通过对传统书院文化的现代转译和对乡村空间的创新改造,成功打造了一个兼具文化深度与美学价值的地标性建筑。其“诗画留白”的设计手法和“龙鳞卷”的文化符号植入,不仅实现了空间功能的优化与美学提升,更在李窑村乡村振兴进程中扮演了文化引擎的角色。正如其设计理念所示,“唤醒根植乡土的崇文愿景”,芳华书院正以其独特的魅力,成为连接传统与现代、城市与乡村的文化桥梁,在金色稻田与书香墨韵中书写着乡村振兴的新篇章。
1条评分金币+6
huozm32831 金币 +6 - 2025-11-21
如何不发帖就快速得到金币道行
 
离线a8008a

UID: 642694

发帖
2494
金币
298
道行
73
原创
0
奖券
0
斑龄
0
道券
0
获奖
0
座驾
设备
摄影级
在线时间: 1816(小时)
注册时间: 2009-03-19
最后登录: 2026-01-06
只看该作者 板凳  发表于: 2025-11-19
与众不同的建筑设计
1条评分金币+4
huozm32831 金币 +4 - 2025-11-21
如何不发帖就快速得到金币道行
 
快速回复
限120 字节
认真回复加分,灌水扣分~
 
上一个 下一个