切换到宽版
  • 29阅读
  • 2回复

[奇观]安徽利辛徐大村民生建筑群设计 / Endless Space 建筑事务所[66P] [复制链接]

上一主题 下一主题
在线jjybzxw

UID: 551814

 

发帖
219531
金币
673701
道行
2006
原创
2446
奖券
3340
斑龄
42
道券
1233
获奖
0
座驾
设备
摄影级
在线时间: 47788(小时)
注册时间: 2008-10-01
最后登录: 2026-01-17
只看楼主 倒序阅读 使用道具 楼主  发表于: 15小时前
— 本帖被 xgch 执行加亮操作(2026-01-17) —


徐大村民生建筑群(下文简称徐大村部)位于安徽省利辛县中疃镇徐大村,距县城约26公里。2025年初Endless Space建筑事务所进行场地调研,春节后投入设计并于4月中旬动工,经过半年多的施工,于11月中旬整体竣工。该项目由央企捐建,设计及建设过程中参与各方都非常努力地为中国的新农村建设贡献一点力量,希望通过该项目的设计和建造,能为新农村的发展提供一些新思路。

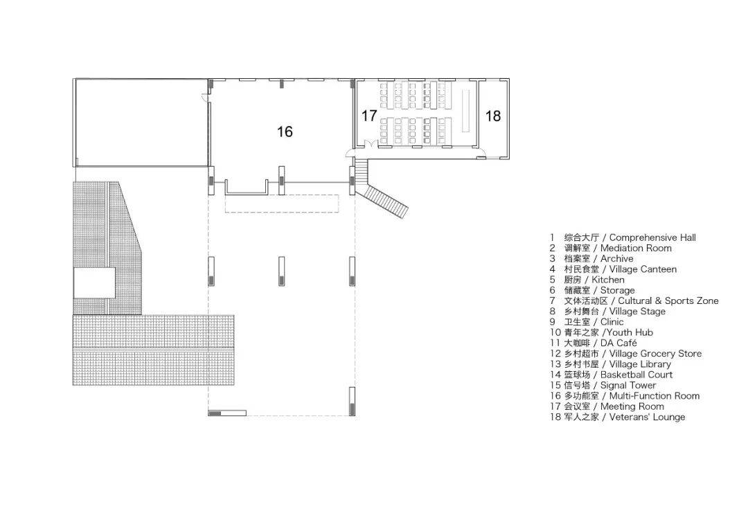
老村室是在徐大村小学校舍原址上发展出来的,新的徐大村部则是基于此的改扩建,以作为村民文体中心及为村民提供服务的功能建筑,整个建筑群还包含党群服务中心、村民食堂、多功能室、农家书屋、军人之家、青年之家、卫生室、乡村超市、篮球场等功能空间。


室内外高差设缓坡,方便乡村留守老人、残疾人进出

城市的发展往往伴随着许多好的东西在建设中消亡。相对于城市,乡村的保护更是容易被忽略。乡村建筑保护是乡村文化遗产保护极为重要的一块,需要通过对老建筑的保护性修缮,新老建筑相互依托,使群落整体得到提升。取其精华,能保护的地方尽量保护是设计的原则。在不得不采取措施拆改的地方,总是得经过非常严谨的思考以取舍。
Endless Space建筑事务所在这个项目中希望学习既有乡村建筑的优点,用设计的手段来帮助乡村,通过实实在在的提升建筑空间质量来潜移默化地影响人们观念的提升。我们想传递一种观念,中国的乡村不只有乡土,它可以很先进,它可以很自信。

老村室建筑群的原状比较松散,村室位于正北侧,是一栋两层的白色小办公楼。卫生室在场地的西北角,像县城里随处可见的很多房子那样,斜搭着蓝色的铁皮以遮阳防雨。原有厕所为旱厕,位于西侧与卫生室毗连,极其简陋。南面原本是老的小学校舍,因为局部结构损坏严重,在我们看到它时,已拆得仅剩西南角的一小半及一间只有8平米的学生食堂。这几栋建筑之间则是大面积的空地。场地的东侧为信号塔,南北及西侧是广袤的农田。





新的村部通过在中心插入一个南北走向、体量稍大一点的建筑来织补场地,把几个零散的小建筑组织到一起,形成新的整体。这栋有2/3面积是大棚顶覆盖的建筑提供了半室外活动空间,形成一大一小两个院子。利辛的夏天非常炎热,村民可以在大棚底下避暑。L型的抬高区域,即是以田野为背景的乡村舞台,也是面向外院及大棚底下文体活动场地的看台。



由于改扩建新增室内面积有限,新老建筑共用一部分室外楼梯以节省空间、降低造价。原建筑二楼为党员活动室,但老楼梯踏步很高,导致年纪大的人上楼困难,使得该活动室使用率较低。改建后,原有L型90度直角楼梯被以135度的折角楼梯替换,流线更顺畅,上下楼更方便。踏步高度也从230mm左右降低至舒适的165mm高。


主建筑南北向进深大,屋顶局部断开镂空,让室内采光更好。改善村部的卫生条件是非常重要的,公共卫生间被安排在新建建筑中间,让它相对于各区的距离更短更便民,建筑体块也因为它的存在而增加了虚实对比。


一楼村民食堂

二楼多功能厅吊顶和南面砖墙的呼应关系
为改善室内混响而增加声学处理,平衡基本功能要求和结构之美

主楼二层西面和北面的连续窗景

卫生室原貌
卫生室屋顶改造成面向田野的大露台
项目初衷除了为村民提供一个好场所,还希望用它来带动本地闲置的劳动力。红砖、钢筋混凝土、木檩条、芦苇、瓦屋顶、磨石及沥青地面、门窗及护栏等,都是用当地能够直接找到的适宜材料和施工技术。



几间残存的小学校舍是村里唯一留存的有纪念意义的建筑,它承载了徐大村几代人的记忆,许多人从村里走向外面的世界,这里寄托着他们的乡愁。
小学校舍改造成的农家书屋 —— 徐大书屋局部插入新建筑大棚顶之下的公共空间,新老建筑互相融合、对话,它的山墙是空间的一个亮点界面。透过大玻璃能看到老屋架、老黑板以及当年小朋友的墙绘,书屋温馨的光吸引村民进屋阅读。


校舍原状





老校舍的屋顶是芦苇加泥瓦顶,这种即便在农村都快要消失的原生材料及传统工艺,给建筑带来城市里所找不到的乡村温度。于是设计选择原样修缮老校舍的顶,并且延续木檩条、竹竿及芦苇的做法将它应用在室外半开放的大棚顶,以区别于新建建筑室内空间的混凝土裸顶或石膏板吊顶的方式。当然,芦苇和瓦屋面之间的屋顶板及主结构框架还是混凝土。实践证明,这种传统工艺是整个项目建造过程中最高效、也是施工现场最欢乐的专项。


大棚顶跨度较大,用以绑扎芦苇的竹竿大小头对插,由师傅所建议

校舍原状

原本颜色过于艳丽、复杂的老校舍南墙改造后局部

小房子套小小房子形成的微院落空间
紧挨着校舍的这栋只有8平米的小房子,据村干部介绍是当年学校的小食堂,中午三四个路远的小朋友会在这里围着灶台边的一张小桌子吃饭。大家觉得有必要保留这栋很有生活记忆的小房子。保护功能的延续性跟保护建筑空间同等重要,随着农村经济的发展,今后乡村的生活方式肯定会有一些转变,新的功能也很可能会在这里发生。于是设想将这个迷你空间做成一个乡村咖啡——大咖啡。在施工临近结束处理屋顶的时候,小房子角部墙体坍塌,现场做了加固处理。
这栋小房子嵌套在青年之家稍大一点的屋顶之下,屋顶局部镂空,让阳光洒入微院落。青年之家的红砖墙半遮掩着小房子,吸引人们来探寻当年的小食堂。


檐口的建构:檐口因瓦屋面滴水的功能必须出挑
梁的退让使整体几何感不因屋檐而削弱


大咖啡入口的构成

卫生室主入口位置有棵柱子,它决定了卫生室的入口改不了位置,在不大改其结构的情况下,卫生室侧面的青年之家若用规整的矩形平面,要么新建筑室内空间太窄不好用,要么它的墙角非常别扭地顶着卫生室大门。设计在此处做了一个特殊处理,用最少的手段让卫生室门前自然打开。斜切一角的青年之家反而因此成为院落空间序列上的视觉焦点。





南面主入口的1.2高的矮围墙结合花坛设计,以及宣传栏都呈整体折线状,顺着来访的方向引导人们进入院子,砖墙和具有功能意义的混凝土结构部件相互穿插,两者之间的清晰关系形成建构带来的美感。



混凝土顶面距地45公分高,作为室外座椅的花坛

在东北角的空地上,设置了国际标准尺寸的半场篮球场,并铺设8mm厚的专业硅PU运动场地地面。在我们走访徐大村的时候,曾看到村民家门口这么有记忆的篮球架。希望在改善乡村运动设施的时候,这些原本非常有生命力的简易设施还能得以保护,在乡村共生。


新建建筑都是红砖砌筑的清水砖墙,红砖板墙的角部在上下做了一些变化,3.9m以上做内退1/4砖的处理,这样,即便在抬高的舞台区也能保证人们伸手够不到,以免攀爬、损坏。这是整个建筑群唯一的花砌,保证了建筑几何上的力量感、简洁度和乡村建筑的朴实度,用最少的手段避免现代建筑普遍的单调感。


设计对老的党群服务中心和卫生室外立面进行简单梳理,让开窗更大更整齐,内部空间结构并没有做太多的改动,保留二楼质地较好的瓷砖地面,剩余的部位简单处理,墙面刷新。


综合大厅

会议室


卫生室




实体模型照片


一层平面图

二层平面图


感谢所有参加施工的工人师傅们,我们尽可能多地收集并在文末列出他们的名字。
感谢支持并促进项目顺利实施的利辛当地各级领导和工作人员。 感谢承建单位安徽睿驰建设工程有限公司,武朕武总和现场施工经理石结焱石工带领团队为项目的高品质建成而倾力投入。
特别感谢张静涛县长为徐大村部项目从立项、讨论设计到建造细节等各个环节的把控,经常亲临现场帮助施工高质高效的推进。
项目信息
建筑面积:1416平方米
基地面积:2357平方米
设计时间:2025年初
完工时间:2025年11月中旬
总设计:Endless Space 建筑事务所
主持建筑师:林锋
项目团队:吴成伟、伦曼瑶、洪枫林、刘阳
结构顾问:张小玮
建筑摄影:ESA
施工总承包:安徽睿驰建设工程有限公司 人员:武朕、石结焱、李市委、康雨涵
技术人员:吴海参、张国伟、钱永伦、马松、王化勇
土建施工:云贺松、吕玉川、丁勇、汝东、叶书奎、毛伟、王汉勇、钱言、魏朝林、霍素云、刘西臣、刘朝领、张永军、王梅花、李红、张明朝、翟玉芳、周芳、郭红艳、刘明华、韩素侠、董兰平、蒋红军、徐芳、宋侠
水,电,油漆,拆除:许凯、孙明飞、孙乐乐、武耀、孙亮、张亮亮、刘明付、胡鹏、胡刚、李友情、张丽丽、武有伟、汪胜梁、张毛妮、王金凤、张玉喜、姜东东、姜苗苗、刘鹏、赵玉峰、高素玲、武有为、武庆春、孙侠、李加楠、闫化刚、朱辉
门窗:安徽富亚玻璃技术有限公司 人员:夏晨阳、高行、朱峰、李威锋、刘彪、张化轩
护栏:李允峰、张洪波、余秀侠、张兰江、王标
磨石施工:王栋、王玉魁、王玉丰、王玉华、王凤斌、王守峰、赵丽
篮球场施工:高俊友、陈勤、孙胜良、孙辉、孙胜停、高群翔
防水施工:祝先洋、祝先秋、武佳佳、闫秀秀、郭冰峰、王鹏
挖机:姜典、黄振飞
沥青地面施工:安徽坚赞建筑工程有限公司。人员:樊利洪,江涛,金碧辉,江文茜,刘阳
1条评分金币+35
xgch 金币 +35 辛苦了,感谢您无私奉献的精神! 29分钟前
山庄提示: 道行不够,道券不够?---☆点此充值☆
 
在线jjybzxw

UID: 551814


发帖
219531
金币
673701
道行
2006
原创
2446
奖券
3340
斑龄
42
道券
1233
获奖
0
座驾
设备
摄影级
在线时间: 47788(小时)
注册时间: 2008-10-01
最后登录: 2026-01-17
只看该作者 沙发  发表于: 15小时前
徐大村民生建筑群项目位于安徽省利辛县中疃镇徐大村,距离县城约26公里,地处皖北平原腹地,周边以农田环绕,村落肌理保存较为完整,具有典型的中原传统乡村风貌。该项目由国际知名设计机构Endless Space建筑事务所主持设计,旨在通过现代建筑语言回应乡村民生需求,探索乡村振兴背景下公共建筑与社区生活融合的新范式。
一、项目背景与设计理念  
Endless Space建筑事务所在2025年初对徐大村展开深入的田野调研,历时一个半月,走访村民家庭、记录生活习俗、测绘既有空间使用模式,并结合地方材料、气候特征与文化符号,提出“低介入、高共鸣”的设计哲学。团队主张“建筑服务于人,而非装饰环境”,强调民生建筑的功能性、可持续性与情感归属感。设计于春节后正式启动,4月中旬完成方案深化并取得施工许可,随即进入建设阶段。

该建筑群并非单一功能体块,而是由多个小型构筑物组成的复合系统,包括:村级综合服务中心、儿童活动站、老年日间照料中心、乡村书屋及农产品展示交易中心。各功能模块呈“星状”布局,围绕一处开放庭院组织,既保持独立运营,又通过廊道与灰空间实现视觉与行为的连接,营造出“聚而不密、散而不断”的空间节奏。
二、空间实践与在地回应  
在材料选择上,项目大量采用本地回收砖石、夯土工艺与再生木材,外墙部分保留手工砌筑痕迹,体现“粗粝中的诗意”。屋顶则运用轻型钢结构搭配深挑檐,适应皖北夏季高温多雨、冬季寒冷干燥的气候特点,同时延续传统坡顶形式,使新建筑在形态上与村落整体风貌协调共生。

特别值得一提的是,设计团队邀请当地工匠参与施工全过程,在技术指导的同时尊重其经验智慧。例如,夯土墙的配比由老匠人根据土壤湿度现场调整,形成独一无二的纹理效果;儿童活动站的彩色玻璃窗图案取材于民间剪纸《五谷丰登》,由村中老人口述题材、青年美工绘制完成,实现了代际文化的转译与再创造。
三、社会价值与社区共建机制  
该项目不仅是一次物理空间的更新,更是一场关于“谁来建造乡村”的深层思考。从前期问卷调查到中期工作坊共议功能配置,再到后期由村民代表组成“运维委员会”参与管理决策,整个过程贯彻“参与式营造”理念。春节期间,建筑群临时作为年俗文化展场投入使用,舞龙队巡游、腊味市集、家谱展览等活动首次在新建空间中举行,迅速建立起村民对新场所的情感认同。

此外,项目引入“时间银行”试点机制——村民可通过参与清洁维护、导览服务等方式积累工时,兑换图书借阅权限或农产品优先展销名额,从而激发持续使用的内生动力。这种将空间运营与社会治理创新结合的尝试,为未来乡村公共服务设施的可持续运行提供了可复制模型。
四、阶段性成果与未来展望  
经过半年多紧锣密鼓的施工,建筑群主体已于2025年10月下旬基本完工,并于11月初通过县级住建部门联合验收。目前正处于室内软装布置与数字化管理系统接入阶段,预计2025年底正式全面对外开放。届时将举办“首届徐大村乡土建造论坛”,邀请国内城乡规划、人类学、生态建筑等领域专家实地考察,共同探讨县域尺度下民生建筑的演化路径。

长远来看,该建筑群有望成为中疃镇乃至利辛县的乡村振兴示范节点,其成功经验或将推广至周边十余个行政村的公共服务升级工程中。Endless Space建筑事务所亦表示将持续跟踪使用反馈,计划发布《徐大村建成环境使用白皮书》,为政策制定者提供基于实证的数据支持。
徐大村民生建筑群的落成,标志着一种新型乡村建设逻辑的诞生:它不追求地标式的视觉冲击,也不依赖外来资本的强力注入,而是以细腻的空间叙事重新编织人与土地、传统与现代之间的关系网络。在这里,建筑不再是静止的容器,而是一个生长中的社会过程——它的真正竣工,或许要等到最后一个村民愿意走进来,并说出“这是我们的房子”那一刻才得以完成。
1条评分金币+6
xgch 金币 +6 回复认真,加分鼓励 29分钟前
如何不发帖就快速得到金币道行
 
在线姜谷粉丝

UID: 1569053

精华: 2
级别: 玉清道君

发帖
167921
金币
496170
道行
20030
原创
766
奖券
359
斑龄
0
道券
30
获奖
0
座驾
设备
摄影级
在线时间: 20695(小时)
注册时间: 2012-06-21
最后登录: 2026-01-17
只看该作者 板凳  发表于: 14小时前
安徽利辛徐大村民生建筑群设计(Endless Space 建筑事务所)

一、项目概况
徐大村民生建筑群位于安徽省亳州市利辛县中疃镇徐大村,是Endless Space建筑事务所针对乡村振兴需求打造的综合性民生项目。项目基于老村室(原徐大村小学校舍原址)进行改扩建,整合了党群服务中心、村民食堂、多功能室、农家书屋、军人之家、青年之家、卫生室、乡村超市、篮球场等功能空间,旨在通过建筑空间的提升,改善村民生活质量,传承乡村记忆,带动本地闲置劳动力就业。

二、设计原则
保护优先,新老融合:保留老村室、老校舍等有纪念意义的建筑(如承载几代人记忆的小学校舍),通过保护性修缮与新建筑衔接,实现“老建筑传记忆、新建筑提功能”的平衡。
地域适配,实用至上:结合利辛当地气候(夏季炎热、冬季寒冷)与乡村生活习惯,采用适宜的建筑技术(如大棚顶半室外空间、屋顶镂空采光),解决实际使用痛点。
材料本土化:使用当地可获取的材料(红砖、钢筋混凝土、木檩条、芦苇、瓦屋顶、磨石地面等),降低建造成本,同时保留乡村特色。
三、功能布局与改造亮点
建筑群以老村室改扩建为主楼,整合周边场地形成“核心功能区+半室外活动区+特色空间”的布局:

核心功能区:主楼一层为村民食堂,二层为多功能厅(兼顾会议、活动需求);周边分布党群服务中心、军人之家、青年之家等服务空间。
半室外活动区:通过“大棚顶+L型抬高区域”形成两大核心活动空间——
大棚顶覆盖的半室外空间:适应利辛夏季炎热气候,为村民提供避暑、休闲场所;
L型抬高区域:既是“以田野为背景的乡村舞台”,也是面向外院的看台,满足乡村文体活动需求。
特色功能补充:卫生室改造为“面向田野的大露台”,拓展村民户外活动空间;乡村超市、篮球场等配套完善日常生活需求。
四、关键改造措施
楼梯优化:原主楼二层党员活动室的L型90度直角楼梯踏步高(约230mm),老人使用不便。改造为135度折角楼梯,踏步高度降低至165mm,流线更顺畅,提升使用率。
采光与通风改善:主楼南北向进深大,屋顶局部断开镂空,增加室内自然采光;墙面采用透气材料,改善通风效果。
老建筑活化:保留老校舍(原小学校舍)的核心元素(如老屋架、老黑板、墙绘),改造成“徐大书屋”。通过大玻璃幕墙引入自然光,温馨的室内氛围吸引村民阅读,同时承载乡村记忆。
五、材料与工艺特色
传统工艺传承:老校舍的“芦苇+泥瓦顶”传统屋顶工艺被保留,并延伸至大棚顶的设计(用竹竿绑扎芦苇),既保留乡村温度,又区别于新建建筑的混凝土或石膏板吊顶。
本地材料应用:红砖、钢筋混凝土等材料均来自当地,降低运输成本;木檩条、芦苇等天然材料的使用,让建筑更贴近乡村原生质感。
六、特色空间设计
徐大书屋(老校舍改造):保留老校舍的山墙、屋架等元素,通过大玻璃幕墙与新建筑(大棚顶)融合。室内保留老黑板、墙绘等记忆符号,温馨的灯光设计营造出舒适的阅读氛围,成为村民的精神寄托。
乡村舞台与看台:L型抬高区域以田野为背景,既是舞台也是看台,村民可在此举办文艺活动、观看赛事,实现“自然与人文”的融合。
半室外大棚空间:大棚顶跨度大,采用“竹竿+芦苇”的传统工艺,为村民提供避暑、聊天、儿童玩耍的场所,成为乡村生活的“公共客厅”。
七、项目意义
该项目不仅提升了徐大村的公共服务水平(如村民食堂、卫生室、农家书屋等),更通过“新老建筑对话”传承了乡村文化记忆(如老校舍的保留)。同时,本地材料与劳动力的使用,带动了村民就业,实现了“建筑改善生活、设计赋能乡村”的目标。
1条评分金币+6
xgch 金币 +6 回复认真,加分鼓励 29分钟前
如何不发帖就快速得到金币道行
 
我有我可以
快速回复
限120 字节
认真回复加分,灌水扣分~
 
上一个 下一个