切换到宽版
  • 6阅读
  • 1回复

[奇观]杭州亚奥万象天地IOI BOUTIQUE/ 蒋杰设计事务所[22P] [复制链接]

上一主题 下一主题
在线jjybzxw

UID: 551814

 

发帖
215233
金币
636794
道行
2006
原创
2442
奖券
3260
斑龄
41
道券
1197
获奖
0
座驾
设备
摄影级
在线时间: 46924(小时)
注册时间: 2008-10-01
最后登录: 2025-12-31
只看楼主 倒序阅读 使用道具 楼主  发表于: 4小时前


©Wen Studio
IOI Boutique 位于杭州亚奥万象天地街区,是一处沿街展开的两层商业空间,拥有两面临街界面。业主希望将其打造为一间具有“美术馆气质”的生活方式买手店:空间不以高密度陈列为目标,而是保持克制与留白,能够随着内容不断调整、重组与更新,如同一个持续被激活的容器。

▲外立面全景© Wen Studio

▲外立面正视© Wen Studio
在这一前提下,设计并未试图通过装饰性语言塑造风格,而是从场地的开放性、可变性与空间体验出发,思考如何在满足零售与运营功能的同时,保留大开间的通透属性,并为使用者提供一种更具探索性的购物体验。空间的核心问题由此被明确:如何在一个功能复杂的商业空间中,既容纳必要的使用需求,又不牺牲场地的整体性与开放感?

▲入口正面© Wen Studio
设计策略并非通过实体隔断对空间进行切碎,而是通过精确的功能规划与结构性构筑,在保持通透性的同时,引导路径与视线的变化。功能空间被集中并合理组织,释放出连续的大 尺度公共区域;展陈系统与家具被设计为可移动、可重组的模块,使空间在不同阶段、不同内容介入下始终保持开放状态。购物不再是线性完成的行为,而成为一种在不同尺度、不同方向中展开的探索过程。

▲爆炸轴测图© 蒋杰设计事务所

▲一楼全景© Wen Studio

▲一楼局部© Wen Studio


▲一楼收银区© Wen Studio
场地中央设置了一组开放折叠的悬浮楼梯,作为连接一、二层的核心构筑物。它不仅承担上下通行的功能,更以建筑体量的方式介入空间,成为场所的组织中枢。楼梯围绕中庭展开,形成回字形的购物动线,以最小的体量切分出清晰却不封闭的空间秩序。在本案中,垂直动线不再是被动的交通设施,而被重新定义为空间体验的结构轴线。



▲二楼展示区© Wen Studio


▲二楼© Wen Studio
楼梯沿途设置多个悬浮平台,人们可以在不同高度停留、观看与回望,获得多角度的空间视野。“观看”成为行进的一部分,路径的展开生成空间叙事,楼梯也由此成为整个场所的视觉核心。


▲楼梯内部© Wen Studio

▲楼梯局部© Wen Studio
在街角的L 形位置,设计打开了原本封闭的部分玻璃幕墙,置入一个 3×3×3 米的方盒子,并向街道方向外挑 50 厘米,使咖啡馆从室内延伸至街区。这一明确的几何体量并非装饰性元素,而是一种界面策略,使买手店与城市日常产生更直接的联系。咖啡吧台同时服务于室内与室外,沿街设置的抬高木地板界定出户外区域,形成非正式的停留与交流场所。人们在此休息、相遇与交谈,从而模糊室内与室外、正式与非正式之间的界限。咖啡馆不仅提供咖啡,也提供精心挑选的食物与饮品,使其成为一种日常而持续发生的使用场景。

▲外立面咖啡盒子© Wen Studio

▲咖啡盒子© Wen Studio

▲入口咖啡盒子© Wen Studio
项目图纸
▲区位图© 蒋杰设计事务所

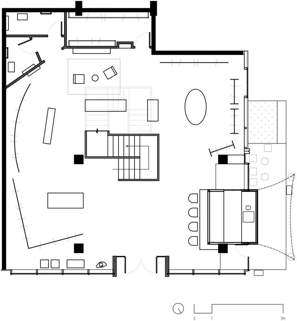
▲一层平面© 蒋杰设计事务所

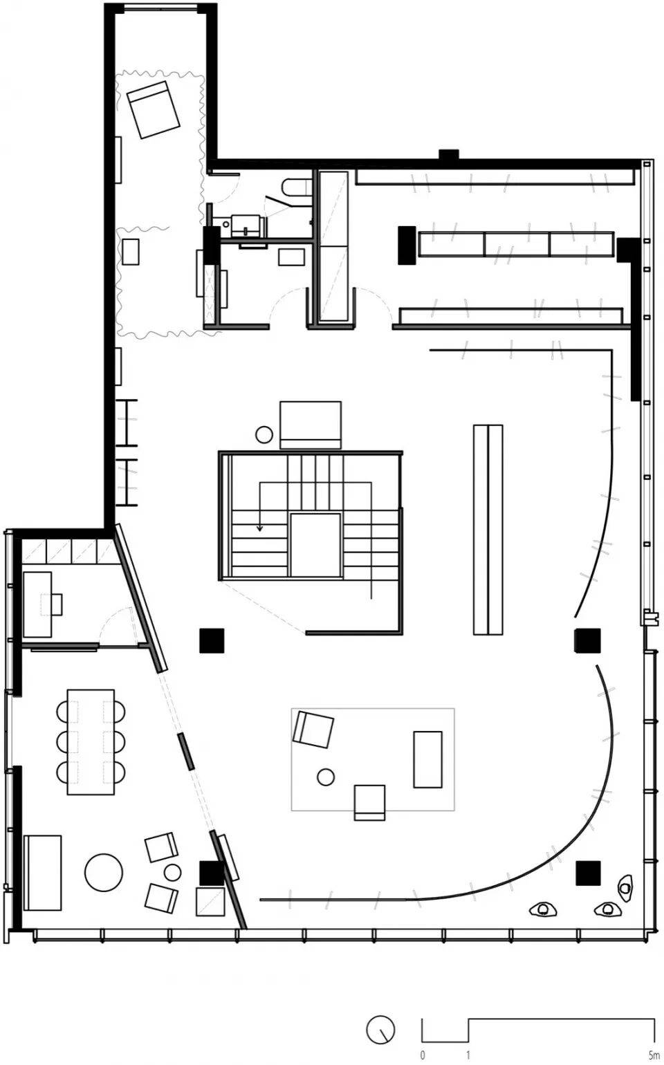
▲二层平面© 蒋杰设计事务所
▲剖面© 蒋杰设计事务所
项目名称 / IOI设计师时装买手集合店
项目地址 / 杭州亚奥万象天地街区
主创设计 / 蒋杰
设计公司 / 杭州蒋杰设计事务所 Jiangjie 0ffice
设计团队 / 李崇炜 葛欣悦
完工时间 / 2025.10
项目面积 / 400㎡
施工单位 / UHJOH
灯光配合 / 荣熙照明
主要材质 / 镀锌板 水泥基自流平地面 铝板喷拉丝漆 老柚木地板 乱纹不锈钢
摄 影 / Wen Studio
山庄提示: 道行不够,道券不够?---☆点此充值☆
 
在线jjybzxw

UID: 551814


发帖
215233
金币
636794
道行
2006
原创
2442
奖券
3260
斑龄
41
道券
1197
获奖
0
座驾
设备
摄影级
在线时间: 46924(小时)
注册时间: 2008-10-01
最后登录: 2025-12-31
只看该作者 沙发  发表于: 4小时前
杭州IOI Boutique买手店通过空间设计、品牌叙事、艺术策展与生活方式的深度融合,成功构建了一种“美术馆气质的生活方式”。它超越了传统零售空间的功能边界,将购物转化为一场沉浸式的审美体验,体现了当代高端消费空间向文化场域转型的先锋实践。以下从五个维度系统阐述其如何体现美术馆气质:
一、空间即艺术:建筑与陈列的极简美学

IOI Boutique选址于杭州钱江新城核心地带,其建筑外观采用极简主义语言,大量运用玻璃、混凝土与金属材质,形成通透而冷峻的视觉质感,宛如一座现代雕塑。内部空间借鉴美术馆的“白盒子”(White Cube)理念——高挑挑空、无柱结构、中性色调墙面与精准打光,使服装与配饰如同艺术品般被“展出”而非“售卖”。
灯光设计遵循博物馆级标准,重点照明聚焦单品细节,弱化商业标识,强化视觉凝视;
动线规划模拟观展路径,设置“序厅—主展区—特别展厅—休憩区”,引导顾客以“参观者”身份缓步穿行;
家具陈设选用限量设计款,如日本建筑师藤本壮介合作作品,本身即是可收藏的艺术装置。

深层意图解读:用户关注“美术馆气质”,实则在探寻“消费能否具有精神性”。IOI通过空间去商业化处理,回应了都市精英对“日常审美救赎”的心理需求——在快节奏生活中寻得片刻沉思与美感停顿。
二、策展式选品:从商品集合到文化叙事

与普通买手店仅追求潮流不同,IOI以“策展思维”重构商品逻辑。每季主题如美术馆展览般命名并策划,例如《流动的边界》《静默的轮廓》,围绕特定美学哲学遴选国际设计师品牌(如Jil Sander、Maison Margiela、Craig Green等),强调概念性、工艺性与思想性。
强调“非主流高阶审美”,弱化Logo文化,推崇极简、解构、可持续等当代艺术议题;
引入独立艺术家联名系列,如与杭州本地水墨实验艺术家合作限定丝巾,实现艺术与时尚的互文;
每件商品配有二维码导览,讲述设计师背景、创作灵感与制作过程,类比美术馆语音导览系统。

此举将“买衣服”升维为“理解一种世界观”,满足用户对“文化资本积累”的隐性诉求——穿着不仅是装饰,更是身份认同与审美宣言。
三、跨界展演:动态文化内容激活空间灵魂

IOI定期举办小型艺术展、影像放映、行为艺术与沙龙讲座,真正实现“空间活化”。其二楼设有“临时展厅”,曾展出青年摄影师的城市肖像系列、数字生成艺术NFT预览,甚至邀请舞蹈家进行即兴肢体表演。
展览内容与当季服装主题呼应,如“身体与布料”主题下呈现舞者与面料互动的影像装置;
合作机构包括中国美术学院、西湖国际纪录片大会等,提升学术背书;
所有活动免费开放,模糊商业与公共文化之间的界限,吸引非消费型访客,增强社区粘性。

这种“去功利化运营”策略,正是美术馆公共性的体现——空间不属于资本,而属于城市文化生态。
四、感官剧场:多维体验营造沉浸式氛围

美术馆不仅观看,更调动全身心感知。IOI通过气味、声音、触觉打造五感剧场:
香氛定制来自法国小众香厂,气味名为“混凝土花园”,融合雨后石板、绿植与微尘,呼应建筑环境;
背景音乐由策展团队精心编排,以极简电子、环境音效为主,音量控制在45分贝以下,营造冥想氛围;
触觉体验上,鼓励试穿与触摸面料,提供丝绸、羊毛、再生纤维等材质样本册,类似美术馆的互动教育区。

用户在此不仅是“消费者”,更是“体验者”与“参与者”,实现了从被动接受到主动感知的转变。
五、社群建构:培养具有审美共识的文化共同体

IOI通过会员制度与内容输出,培育一个具有共同美学价值观的社群。其微信公众号不发布促销信息,而是连载《衣之思》专栏,探讨“服装与存在”“慢时尚伦理”等哲学命题;线下组织“城市漫步”活动,带领会员探访杭州废弃工厂、老宅园林,在真实场景中讨论空间与时间的美学。
会员被称为“观察员”,赋予其文化身份而非客户标签;
年度发布《生活年鉴》,记录一年来的展览、对话与街头摄影,形成长期文化档案;
与单向空间、晓书馆等文化品牌联动,构建长三角人文生活网络。

这体现了更高层次的品牌理想:不止卖货,更要塑造一种“清醒而诗意”的生活方式范式。
结语:重新定义“奢侈”的当代意义

杭州IOI Boutique买手店的本质,并非一家店铺,而是一座“流动的私人美术馆”,一座关于当代生活的审美实验室。它揭示了一个深层趋势:在物质丰裕时代,真正的奢侈不再是炫耀性消费,而是拥有凝视美、理解美、生活在美中的能力。

通过将美术馆的策展逻辑、空间语法与公共精神植入商业场景,IOI完成了对消费文化的温柔颠覆——在这里,每一次驻足、触摸与交谈,都是对庸常生活的抵抗,也是对“何为美好人生”的持续追问。

如何不发帖就快速得到金币道行
 
快速回复
限120 字节
认真回复加分,灌水扣分~
 
上一个 下一个