切换到宽版
  • 255阅读
  • 1回复

[奇观]结果 | 德国威斯巴登博物馆扩建设计竞赛结果[35P] [复制链接]

上一主题 下一主题
在线jjybzxw

UID: 551814

 

发帖
217623
金币
656877
道行
2006
原创
2444
奖券
3260
斑龄
41
道券
1203
获奖
0
座驾
设备
摄影级
在线时间: 47374(小时)
注册时间: 2008-10-01
最后登录: 2026-01-10
只看楼主 倒序阅读 使用道具 楼主  发表于: 2025-12-12
— 本帖被 huozm32831 执行加亮操作(2025-12-12) —

转自:archrace 建筑竞赛

威斯巴登博物馆(Erweiterungsbau Museum Wiesbaden)是德国黑森州的三座州立博物馆之一。作为一座兼具自然历史和艺术展览的综合性机构,它将自然历史藏品与艺术作品(包括从古典现代主义到当代艺术)融为一体。博物馆坐落于一座由 Theodor Fischer 在20世纪初设计的一座三翼建筑内。为了容纳日益增长的藏品并进行适当的展示,黑森州于2024年发起了一项限定性竞赛。竞赛旨在为现有建筑增添一座清晰可辨的现代建筑,并使其能够用于大型雕塑的展览。
扩建部分将占用约800平方米的用地面积,这片区域目前为展厅以及博物馆南庭院的现有停车场。除了新增1800平方米的展览空间外,还将建造储藏设施和办公空间。此外,咖啡厅也需要搬迁,因为其当前位置将成为未来连接新旧建筑的通道。现有地下室以及博物馆庭院下方的潜在地下结构,都为展览规划的实施提供了更多空间。
2025年夏季,评审团召开会议,评选出三等奖和两项荣誉奖,并建议对19份参赛作品中的两份进行进一步修改。然后在11月,评审团对修改后的方案重新评估后,最终确定了以下排名:
第一名:Schenker Salvi Weber (奥地利);
第二名:Wandel Lorch Götze Wach(德国);
第三名:Degelo Architekten(瑞士);
入围:gmp • Architekten von Gerkan, Marg und Partner(德国),Faerber Architekten(德国);
入围:Staab Architekten(德国)。
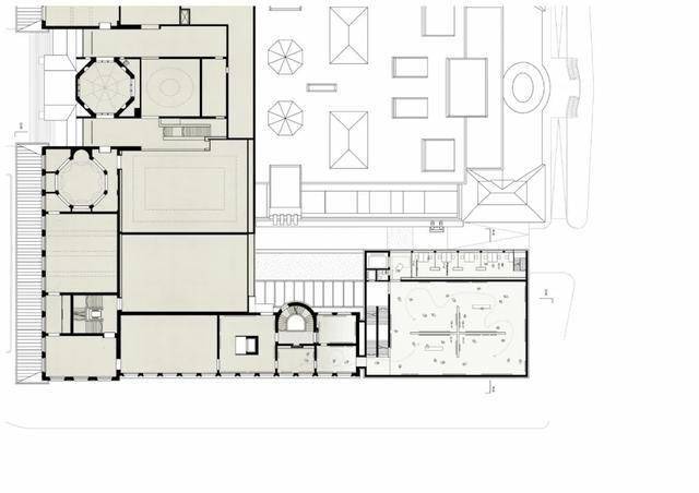
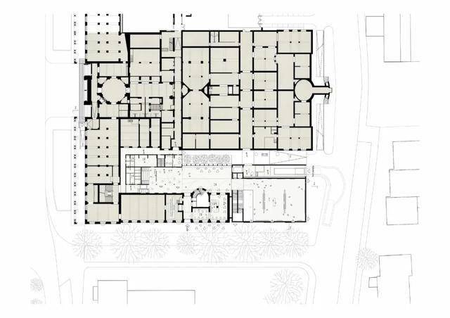
竞赛获奖方案
第一名
Schenker Salvi Weber (奥地利)

















以上图片如无特殊标注,版权均为 ©Schenker Salvi Weber
Schenker Salvi Weber 的设计在尊重现有建筑结构的同时,也展现了自身的独立性。通过立面的雕塑感、水平方向的线条运用以及材料的选择,这座独立建筑与旧博物馆建筑相呼应,并以一条狭窄的缝隙巧妙地将二者区分开来。扩建部分展现了稳重的气质,并能提升博物馆建筑群作为背景的效果。
评审团尤其赞赏了扩建部分在底层和顶层的玻璃幕墙的部分。他们指出,这些玻璃幕墙不仅支撑了建筑的结构设计,还突出了顶层艺术家专属的展览空间。然而,即使经过修改,较高的太阳辐射量仍然是该项目一个需要关注的问题。此外,内部布局逻辑清晰、协调一致。入口区域设有售票处和博物馆商店,巧妙地连接了新旧建筑;咖啡厅虽然位于地下一层,却营造出舒适宜人的氛围。
改建后的建筑新布局方案广受好评:电梯的整合和货物运输的改善都带来了显著的提升。尤其令人信服的是,在特设展厅前设置了剪刀式楼梯。评审团认为,这一设计有助于引导参观者,并允许在不影响参观人流的情况下更换展品。
第二名
Wandel Lorch Götze Wach(德国)





以上图片如无特殊标注,版权均为 ©Wandel Lorch Götze Wach
第三名
Degelo Architekten(瑞士)




以上图片如无特殊标注,版权均为 ©Degelo Architekten
入围
gmp • Architekten von Gerkan, Marg und Partner(德国),Faerber Architekten(德国)




以上图片如无特殊标注,版权均为 ©gmp • Architekten von Gerkan, Marg und Partner,Faerber Architekten
入围
Staab Architekten(德国)




以上图片如无特殊标注,版权均为 ©Staab Architekten
文字编辑 | 思空建观
校对审核 | 斯坦
本竞赛信息及文中涉及的图片均来自网络,原始版权属于竞赛主办方和竞赛提案设计师所有,如有版权问题,请联系删除。
1条评分金币+20
huozm32831 金币 +20 - 2025-12-12
山庄提示: 道行不够,道券不够?---☆点此充值☆
 
在线jjybzxw

UID: 551814


发帖
217623
金币
656877
道行
2006
原创
2444
奖券
3260
斑龄
41
道券
1203
获奖
0
座驾
设备
摄影级
在线时间: 47374(小时)
注册时间: 2008-10-01
最后登录: 2026-01-10
只看该作者 沙发  发表于: 2025-12-12
威斯巴登博物馆扩建竞赛:现代建筑与历史遗产的对话

项目背景
威斯巴登博物馆(Museum Wiesbaden)是德国黑森州重要的文化机构,集自然历史与艺术展览于一体,其主体建筑由Theodor Fischer于20世纪初设计,为三翼古典建筑。随着藏品增长和展示需求提升,黑森州于2024年发起扩建竞赛,旨在为博物馆增添现代建筑空间,以容纳大型雕塑展览,并优化功能布局。扩建项目计划占用约800平方米用地(原展厅及南庭院停车场),新增1800平方米展览空间、储藏设施、办公空间及咖啡厅搬迁改造。

竞赛结果与评审过程
2025年夏季,评审团对19份参赛作品进行评审,评选出三等奖及两项荣誉奖,并建议对两份方案进行修改。同年11月,经修改方案复评,最终排名如下:

最终获奖名单
| 排名       | 设计单位                          | 国家   |
|------------|-----------------------------------|--------|
| 第一名 | Schenker Salvi Weber              | 奥地利 |
| 第二名 | Wandel Lorch Götze Wach           | 德国   |
| 第三名 | Degelo Architekten                | 瑞士   |
| 入围   | gmp • Architekten von Gerkan, Marg und Partner | 德国 |
|            | Faerber Architekten               | 德国   |
|            | Staab Architekten                 | 德国   |

获奖方案解析

第一名:Schenker Salvi Weber(奥地利)
设计理念:该方案在尊重历史建筑的同时追求现代独立性。通过立面的雕塑感、水平线条与材料选择,新建筑既与旧馆形成对话,又以一条“狭窄缝隙”明确区分两者,展现出稳重而富有张力的气质。

亮点设计:
1. 玻璃幕墙应用:底层和顶层的玻璃幕墙不仅强化了结构设计,还凸显了顶层艺术家专属展览空间。评审团特别赞赏这一处理。
2. 功能布局:入口区域整合售票处与博物馆商店,无缝连接新旧建筑;地下一层咖啡厅虽位置下沉,但营造出舒适氛围。
3. 流线优化:特设展厅前的剪刀式楼梯有效引导参观者,并支持展品更换时不影响人流。电梯整合与货物运输系统的改善也获高度评价。

挑战:尽管方案出色,但较高的太阳辐射量仍是需解决的问题。

第二名:Wandel Lorch Götze Wach(德国)
(方案详情未完全披露,但其设计可能侧重于与历史建筑的和谐共生,在空间组织和材料运用上体现德国现代主义建筑的严谨性。)

第三名:Degelo Architekten(瑞士)
(方案以瑞士建筑的简洁理性著称,可能通过极简的形态语言和对光影的精妙控制,实现新旧建筑的功能与美学平衡。)

入围方案
- gmp • Architekten von Gerkan, Marg und Partner(德国):作为国际知名事务所,其方案可能延续了gmp一贯的宏大叙事与清晰逻辑,在体量规划和交通组织上有独到之处。
- Faerber Architekten(德国)、Staab Architekten(德国):这两家德国本土事务所的方案则可能更注重对场地文脉的深度挖掘和细节处理。

方案核心价值
1. 历史与现代的融合:所有获奖方案均强调新建筑与Theodor Fischer古典建筑的对话关系,而非简单叠加。通过形态、材料或空间策略,实现“可识别的现代性”与“尊重历史”的平衡。
2. 功能拓展:针对大型雕塑展览的需求,方案普遍重视层高、承重及灵活展陈空间的设计,同时优化了储藏、办公及公共服务设施布局。
3. 用户体验:流线设计、采光通风、公共空间营造等方面均以提升参观者体验为核心,如Schenker Salvi Weber方案中的剪刀式楼梯和地下咖啡厅设计。

结语
威斯巴登博物馆扩建竞赛的成功举办,不仅为博物馆未来发展奠定了基础,也为历史建筑的现代更新提供了典范。Schenker Salvi Weber的 winning scheme 以其精准的空间处理、对历史文脉的尊重以及创新的功能布局,赢得了评审团的认可。未来,这座新旧交融的建筑群将更好地服务于公众,展现黑森州丰富的文化遗产与当代艺术活力。
1条评分金币+6
huozm32831 金币 +6 - 2025-12-12
如何不发帖就快速得到金币道行
 
快速回复
限120 字节
认真回复加分,灌水扣分~
 
上一个 下一个