切换到宽版
  • 15阅读
  • 2回复

[奇观]深圳神州数码国际创新中心 / 深圳华汇设计[40P] [复制链接]

上一主题 下一主题
在线jjybzxw

UID: 551814

 

发帖
196828
金币
496553
道行
2004
原创
2432
奖券
3100
斑龄
39
道券
1134
获奖
0
座驾
设备
摄影级
在线时间: 43786(小时)
注册时间: 2008-10-01
最后登录: 2025-10-25
只看楼主 倒序阅读 使用道具 楼主  发表于: 8小时前
— 本帖被 huozm32831 执行加亮操作(2025-10-25) —

△屹立在深圳湾超级总部基地的双塔 ©张超建筑摄影工作室

△ 屹立在深圳湾超级总部基地的双塔 ©廖沁芳

深圳湾超级总部基地作为大湾区最重要的全球高端产业聚集地,超总将以绿色生态、科技互联、人文艺术作为设计主旨,以街坊式规划理念创造活力街道,打造高渗透率的复合型公共空间。

神州数码国际创新中心作为超总首发项目之一,基地雄踞核心腹地,紧邻中央绿轴,项目在尊重超总片区严整规划秩序的基础上,以灵动渗透的空间策略和像素化的科技语汇实现创造性回应。设计既尊重城市规划框架,又以立体生态、多维链接等手法突破形态边界,于严谨网格中书写自由跃动的建筑叙事。

△ 项目在深圳湾超级总部基地的位置©深圳华汇设计

△ 东侧视角 ©张超建筑摄影工作室

△ 西侧视角 ©廖沁芳

水平渗透,垂直蔓生

规划以谦逊而敏锐的姿态融入深圳湾超级总部基地的整体构架,从容回应山海城市特有的空间韵律。设计以水平方向轻柔渗透,给城市留出呼吸的通道——街巷微缩成谷,广场蔓延如泊,与中央绿轴和地铁脉络温柔相接,在严谨的网格中孕育出自由流动的底部界面。垂直系统则如有机生长的藤蔓,以连廊、露台与空中院落构建出一组立体聚落,在理性秩序基调上奏出一曲轻盈跃动的自然乐章。这一切并非对城市结构的简单复现,而是在理解其内在逻辑后,以建筑语言实现纪律与灵动之间的平衡——既锚固于城市秩序,又自由地向上生长。

△ 概念—“秩序与自由” ©深圳华汇设计

△面向绿轴的建筑界面 ©张超建筑摄影工作室

△晨光中的建筑 ©廖沁芳

△晚霞里的建筑 ©张超建筑摄影工作室

△ 建筑融于城市绿意 ©张超建筑摄影工作室

多维链接

设计以立体叠合的公共空间系统,构建从城市到建筑的多维连接体系。首层通过嵌入口袋公园与蜿蜒街巷,柔化地块边界,使绿意如溪流般漫入城市肌理,形成与中央绿轴及相邻地块的柔性渗透;二层以架空连廊编织出一张充满温度的步行网络,将人群、公园与光影温柔串联,激发区域慢行活力。

绿意自地面庭院经裙房绿化台地延展至空中露台,逐步向上形成井然有序的生态系统。这一系统不仅强化了建筑与城市的交互界面,更是超越了连接本身,它将人、自然与建筑编织成有机的整体,巧妙的将本项目融入到深圳湾超级总部基地的大生态框架中。

△城市渗透 ©深圳华汇设计

△ 东侧入口广场 ©张超建筑摄影工作室

△塔楼底部透视 ©廖沁芳

△ 口袋广场 ©张超建筑摄影工作室

△ 商业院落 ©张超建筑摄影工作室

△ 立体院落 ©张超建筑摄影工作室

△ 塔楼与底部街巷 ©张超建筑摄影工作室

△ 二层慢行系统 ©深圳华汇设计

生态叠脉

设计将深圳湾超级总部基地的绿色廊道视为城市生命的自然延伸,以建筑为媒介,实现人与自然的深层对话。通过建筑与生态系统的深度融合实现与城市脉搏的同频共振。双塔以错动布局主动迎上中央绿轴,层叠的空中露台与退台形成向上延展的绿色界面,犹如绿脉自然攀升,将城市级生态序列引入建筑垂直维度。这一策略不仅延续了片区生态框架,更将场地有机融入城市可持续发展的大脉络之中——建筑不再是孤立的客体,而是与城市共呼吸的生命体,以其立体叠合的生态架构,谱写出一曲自然、建筑与人文共鸣的生态交响,实现从宏观城市到微观场所的生命协同。

△ 与周边环境有机相融 ©张超建筑摄影工作室

△树梢上的建筑 ©张超建筑摄影工作室

像素构形,材艺织章

像素不再是数字世界的专属语言,当离散单元被赋予引力、张力与生命力,建筑便成为凝固的量子诗篇。方案设计以 “像素” 这一数字时代的基本单元作为建筑形态生成的母题,借助参数化逻辑,将体块解构为模块化的像素单元,实现标准化模块在三维空间中的自由组合与有机演变,构建出兼具高度秩序性与动态张力的建筑系统。

△ 像素构型 ©深圳华汇设计

△ 建筑与城市背景 ©张超建筑摄影工作室

△ 建筑与城市背景 ©廖沁芳

△ 建筑夜景 ©TS倘思照明

建筑立面形象通过像素化形态与科技感材质的运用,呼应了神州数码云科技的企业特质,传递出活力、科技、未来与发展的积极寓意。

模序律动

参数化生成的像素单元被转化为立面的基本模数语言。通过标准化4.5米×4.5米的幕墙模块,构建出清晰的结构秩序。这些单元在立面构图中有序排布、叠合与穿插,形成既整体统一又富有变化的韵律节奏,建筑立面形态于理性秩序中诞生诗意律动。塔楼与裙房延续同一模数语言,却又以差异化的像素密度和构图节奏回应各自功能属性——塔楼强调竖向挺拔与科技感,裙房则采用更亲切的尺度与虚实对比。立面不再是静止的表皮,而是承载着秩序与自由、理性与诗意双重基因的动态媒介。

△ 律动的空间像素 ©张超建筑摄影工作室

△ 像素肌理 ©TS倘思照明

△ 云台 ©张超建筑摄影工作室

△ 单元式墙身节点 ©深圳华汇设计

“材艺”协同

材料不仅是功能的载体,更是情感与氛围的塑造者。建筑气质通过材料的精心遴选与工艺控制得以升华。玻璃的透与铝型材的实形成强烈的虚实对比,在日光推移下演绎出丰富的光影层次,强化像素单元的立体感与韵律变化。

裙房立面的叙事则更贴近人文温度。冰裂纹釉面陶板釉面下冰晶般交织的肌理,在不同光线与视角中呈现细微变幻,既与塔楼的科技感呼应,又为建筑基座注入一抹温润底蕴。米黄色铝格栅以柔和的线性肌理与之搭配,进一步柔化体量、营造更具亲和力的近人尺度环境。陶板的实与格栅的虚形成二次对话,进一步丰富了立面层次。

△ 建筑构造 ©深圳华汇设计

△ 建筑细部 ©张超建筑摄影工作室

△ 釉面陶板©深圳华汇设计

△ 建筑与天空形成的图底 ©张超建筑摄影工作室

△ 霞光中的建筑 ©张超建筑摄影工作室

△街区空间 ©张超建筑摄影工作室

△ 办公空间 ©张超建筑摄影工作室

△ 办公空间 ©廖沁芳

△ 大堂空间 ©张超建筑摄影工作室

△ 建筑与周边环境关系 ©张超建筑摄影工作室

结语

神州数码国际创新中心,以像素为笔,以科技为墨,在深圳湾畔书写着山海连城的城市新篇章。在城市尺度上,它不仅是一座地标性建筑,更是城市发展的催化剂。其开放的城市公共空间体系,激活了周边区域的城市活力;独特的建筑形态与山海连城的地域特色相融合,丰富了深圳湾的城市天际线。

△ 融于湾区的城市天际线 ©夏智航

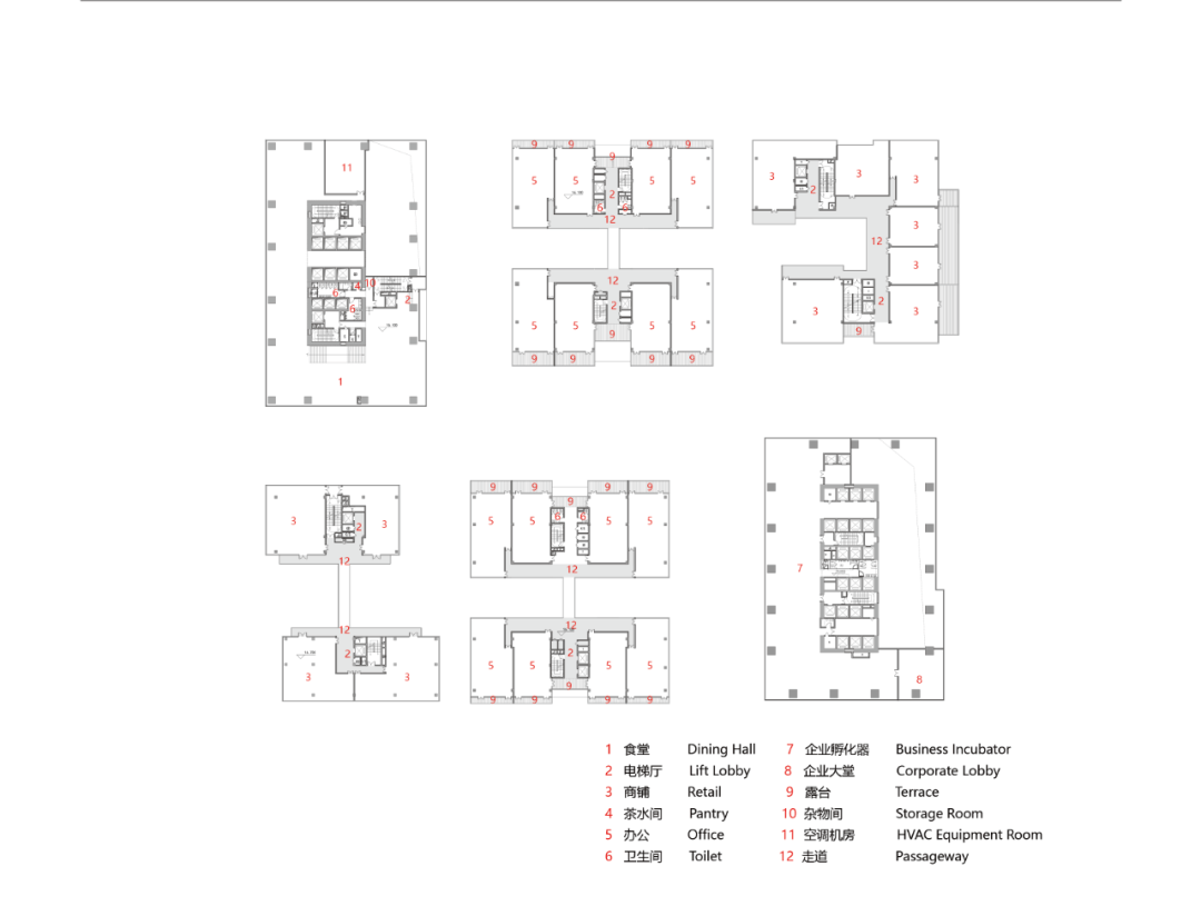
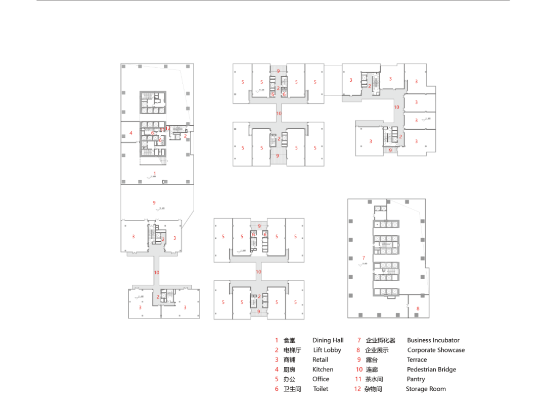
设计图纸

△ 首层平面图 ©深圳华汇设计

△ -1F平面图 ©深圳华汇设计

△ 2F平面图 ©深圳华汇设计

△ 3F平面图 ©深圳华汇设计

△ 4F平面图 ©深圳华汇设计

项目信息

项目名称:神州数码国际创新中心

建筑设计:深圳华汇设计

主创建筑师:肖诚,任园园

设计团队:陈康元,高云飞,谢长金,曾小涛,高昊,李江涛

项目地点: 广东省深圳市

设计时间: 2018年1月至2023年5月

竣工时间: 2023年9月

用地面积: 25634㎡

业主单位: 神州数码集团股份有限公司

代建单位:深圳卓越商业置业公司

室内设计: CTG Architecture

景观设计: Lab D+H SH

施工图设计:广东省建筑设计研究院集团股份有限公司

施工单位:中国建筑第三工程局有限公司

灯光顾问:TS倘思照明

摄影:张超建筑摄影工作室、廖沁芳、TS倘思照明、夏智航、深圳华汇设计

1条评分金币+20
huozm32831 金币 +20 - 11分钟前
山庄提示: 道行不够,道券不够?---☆点此充值☆
 
在线jjybzxw

UID: 551814


发帖
196828
金币
496553
道行
2004
原创
2432
奖券
3100
斑龄
39
道券
1134
获奖
0
座驾
设备
摄影级
在线时间: 43786(小时)
注册时间: 2008-10-01
最后登录: 2025-10-25
只看该作者 沙发  发表于: 8小时前
深圳湾超级总部基地与神州数码国际创新中心深度解析

深圳湾超级总部基地:大湾区的全球高端产业引擎

深圳湾超级总部基地(简称“深超总”)作为粤港澳大湾区的核心地标,是深圳战略发展的重中之重。其规划总面积约117公顷,规划总建筑面积达520万平方米,总投资约3000亿元,每平方米投资密度高达25.6万元,是前海核心区的10倍。这片被誉为“深圳湾海岸线上最后一块拼图”的区域,正以“一心双核,十字生境”的空间规划理念,打造集全球总部集聚区、都会文化高地、国际交流中心、世界级滨海客厅于一体的未来城市典范。

核心规划与定位
- 绿色生态:拥有约519.5万平方米的生态界面,超越纽约中央公园(340万平方米),是中国3万亿级GDP城市中唯一同时拥有海、湖、湿地、公园、高尔夫球场五大自然资源的生态复合区。
- 科技互联:以智能建造和数字化技术为支撑,如C塔项目采用“一软、一硬、一网、一平台”智能建造体系,钢结构用量达7.2万吨,相当于1.7个鸟巢。
- 人文艺术:汇聚全球顶尖建筑事务所作品,如扎哈·哈迪德、福斯特、奥雷·舍人等,形成“全球艺术建筑博览馆”。

交通与配套优势
- 六轨六站立体交通:已开通地铁2/9/11号线,规划29号线;在建穗莞深城际,规划深莞城际,实现与大湾区核心城市的快速通达。
- 10分钟超级生活圈:涵盖万象天地、深圳湾万象城等高端商业,以及优质医疗、星级酒店、休闲娱乐等顶级配套。
- 国际交流中心:已举办多场国际活动,如西班牙深圳总商会举办的“深巴友好”交流会,成为城市对外展示的重要窗口。

神州数码国际创新中心:超总首发项目的创新实践

神州数码国际创新中心(IIC超总壹号)作为深超总首个建成的标志性项目之一,位于核心腹地,紧邻中央绿轴。项目总建筑面积约25万平方米,由两栋200米高的双塔组成,以“像素构形”和“生态叠脉”为核心设计理念,完美诠释了科技与自然的融合。

设计理念:“秩序与自由”的平衡
- 水平渗透,垂直蔓生:底层通过口袋公园、街巷广场与中央绿轴无缝衔接,形成流动的城市界面;垂直方向以连廊、露台和空中院落构建立体生态系统,在严谨网格中实现自由生长。
- 多维链接:首层嵌入式绿化与二层架空连廊形成“立体步行网络”,将建筑与周边生态、交通系统紧密相连,激发区域慢行活力。

建筑特色:像素化科技语汇与生态融合
- 像素构形:以数字时代“像素”为母题,通过参数化设计将体块解构为模块化单元,在立面上形成富有韵律的科技感肌理,呼应神州数码的云科技企业特质。
- 生态叠脉:双塔错动布局迎向中央绿轴,层叠露台与退台形成“绿色爬升”界面,将城市级生态廊道引入建筑垂直维度。裙房采用冰裂纹釉面陶板与铝格栅结合,营造温润人文基座。

功能与业态
- 多元复合业态:集总部办公(约9万㎡)、总裁会馆(约4万㎡)、云端会客厅、商业(约3万㎡)于一体。办公部分提供140㎡-2600㎡灵活空间,总裁会馆主打248-600㎡奢华公寓。
- 智能生活系统:构建无接触式全屋智能生态,配备数据隐私保护技术,并由仲量联行提供纯正英式贵族物业服务。
- 创新孵化平台:包含2035实验室和深圳人工智能计算中心,聚焦云计算、大数据、AI大模型等领域,推动产业数字化转型。

技术与细节亮点
- 立面设计:采用4.5米×4.5米标准化幕墙模块,玻璃与铝型材虚实对比,在光影下产生丰富律动。裙房釉面陶板肌理细腻,在不同光线中呈现变幻效果。
- 灯光设计:由TS倘思照明操刀,夜间建筑像素肌理在灯光映衬下宛如“凝固的量子诗篇”,成为深圳湾夜景新地标。
- 可持续发展:通过立体绿化系统降低能耗,雨水回收利用,并获得LEED金级认证。

项目意义与未来展望

神州数码国际创新中心不仅是企业总部的物理载体,更是深超总“绿色生态、科技互联、人文艺术”理念的生动体现。其建成标志着深超总从规划蓝图迈向实体建设的关键一步。

截至2025年10月,深超总已确定入驻企业达16家,包括招商银行、中国电子、OPPO、大疆创新、传音控股等世界500强及行业领军企业。预计2027年整体投入运营后,将创造超4821亿元GDP贡献值,成为展示深圳竞争力的“巅峰之作”。

随着中兴通讯总部大厦(2025年7月封顶)、传音控股全球总部(2025年3月拿地)等重点项目陆续推进,深超总正加速形成“总部集群效应”。这片土地不仅承载着深圳的未来梦想,更将成为中国参与全球竞争的重要战略支点,在山海之间书写新时代的城市传奇。
1条评分金币+6
huozm32831 金币 +6 - 11分钟前
如何不发帖就快速得到金币道行
 
在线姜谷粉丝

UID: 1569053

精华: 2
级别: 玉清道君

发帖
160446
金币
421328
道行
20030
原创
764
奖券
302
斑龄
0
道券
30
获奖
0
座驾
设备
摄影级
在线时间: 19274(小时)
注册时间: 2012-06-21
最后登录: 2025-10-25
只看该作者 板凳  发表于: 3小时前
以下是关于深圳神州数码国际创新中心(神州数码IIC)及其建筑设计方深圳华汇设计有限公司的整合信息,依据搜索结果整理:

一、深圳神州数码国际创新中心
1. 项目概况
定位:深圳湾超级总部基地(深超总)首发项目,定位为“世界级总部集群+数字化商务社区”,吸引云计算、人工智能、金融科技等企业入驻 。
建筑设计:
外立面以“数码像素”为灵感,融合中国传统“高山流水”意境,打造科技感与艺术性兼具的地标 。
两栋200米塔楼(东塔206米、西塔205米),标准层面积2300-2600㎡,层高4.5米,设9.2米双层挑高空间 。
大堂约14米挑高,700㎡甲级商务空间 。
生态办公:
唯一同时拥有海、湖、湿地、公园、高尔夫五大自然资源的商务区,毗邻519万㎡生态绿地(超纽约中央公园)。
LEED金级认证,配备新风系统及冰蓄冷中央空调 。
2. 核心业态与配套
四大业态:超甲级写字楼(ICC)、超总壹号公寓、超总会会所、超总坊商业

智慧设施:
5G全覆盖+智能化楼宇系统,20部三菱电梯(梯速6m/s),150mm网络地板 。
DC·AI生态创新中心:位于37层,整合AI技术应用于教育、金融等行业场景 。
交通枢纽:
六轨交汇(地铁2/9/11/29号线+穗莞深城际+深莞城际),25分钟直达香港中环,地下可办理值机 。
3. 租金与租赁信息
租金范围:138-198元/㎡·月起(含税),管理费28-35元/㎡·月 。
可租面积:98㎡起,整层2600㎡,实用率约66% 。

二、深圳华汇设计有限公司
1. 企业角色
神州数码IIC设计方:主导建筑与照明设计,以“像素矩阵”和“城市缝隙”概念打造科技地标 。
设计理念:强调“城市公共空间渗透”,通过口袋公园、空中连廊连接生态与商务功能 。
2. 公司实力
资质:高新技术企业(2023年)、科技型中小企业(2025年),拥有17项专利及101项软件著作权

代表作:神州数码IIC(获LEED金级认证)、装配式金属屋顶防水系统(专利号CN223256321U)。
争议:涉诉案件31起,含6件立案信息(需进一步核实风险)
3. 基本信息
成立时间:2003年,总部位于深圳南山区香年广场 。
业务范围:建筑/室内/环境艺术设计,聚焦绿色低碳与城市更新 。
三、二者关联性总结
深圳华汇设计作为神州数码IIC的建筑总设计方,将“数码像素”理念转化为标志性立面68,同时通过生态融合设计(如候鸟迁徙通道、立体绿轴)强化项目“商务+自然”定位28。项目已成为深超总核心标杆,华汇设计亦借此夯实其在科技建筑领域的专业地位
1条评分金币+6
huozm32831 金币 +6 - 11分钟前
如何不发帖就快速得到金币道行
 
我有我可以
快速回复
限120 字节
认真回复加分,灌水扣分~
 
上一个 下一个